La construcción se encuentra elevada sobre columnas de hormigón, lo que permite una mejor adaptación al terreno y una integración más liviana con el entorno. El exterior combina chapa acanalada color negro con siding en tono natural, logrando un equilibrio entre modernidad y calidez. Las aberturas amplias y la terraza frontal aportan buena iluminación y una conexión directa con el paisaje. Es una solución práctica, estética y funcional para entornos naturales.









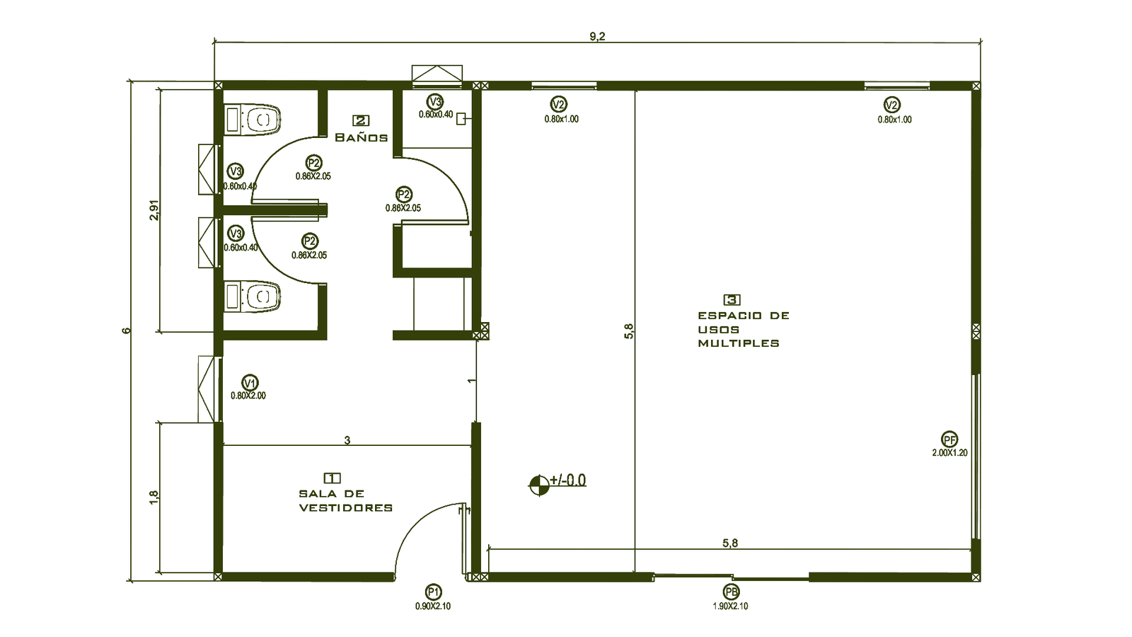
Esta unidad modular, destinada a funcionar como gimnasio de artes marciales, se monta sobre pilotes de hormigón que aseguran estabilidad y una correcta nivelación del terreno. Su envolvente exterior está completamente resuelta en siding, combinando piezas horizontales en color negro con paneles verticales en tono natural, lo que genera un contraste ordenado y contemporáneo. Las aberturas amplias favorecen la iluminación del interior y acompañan la estética limpia del conjunto. El sistema modular permite un montaje rápido y preciso, adaptándose con eficiencia al entorno natural donde se implanta.








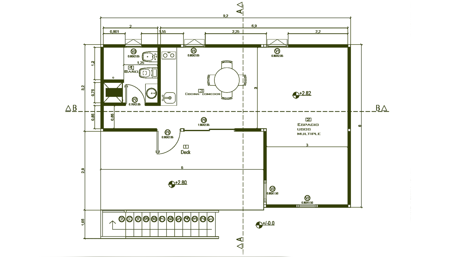
Esta vivienda modular se eleva sobre pilotes de hormigón, garantizando estabilidad y una adecuada adaptación al terreno. En su exterior combina siding en tono madera con chapa acanalada negra, generando una apariencia contemporánea y a la vez cálida. El alero frontal aporta protección climática y destaca el acceso principal, mientras que el deck exterior extiende el área habitable hacia el entorno natural, funcionando como transición entre el interior y el paisaje. El conjunto se presenta como una solución arquitectónica equilibrada, funcional y estéticamente integrada a su contexto.








