Tipologías

↓
Nuestros Modelos
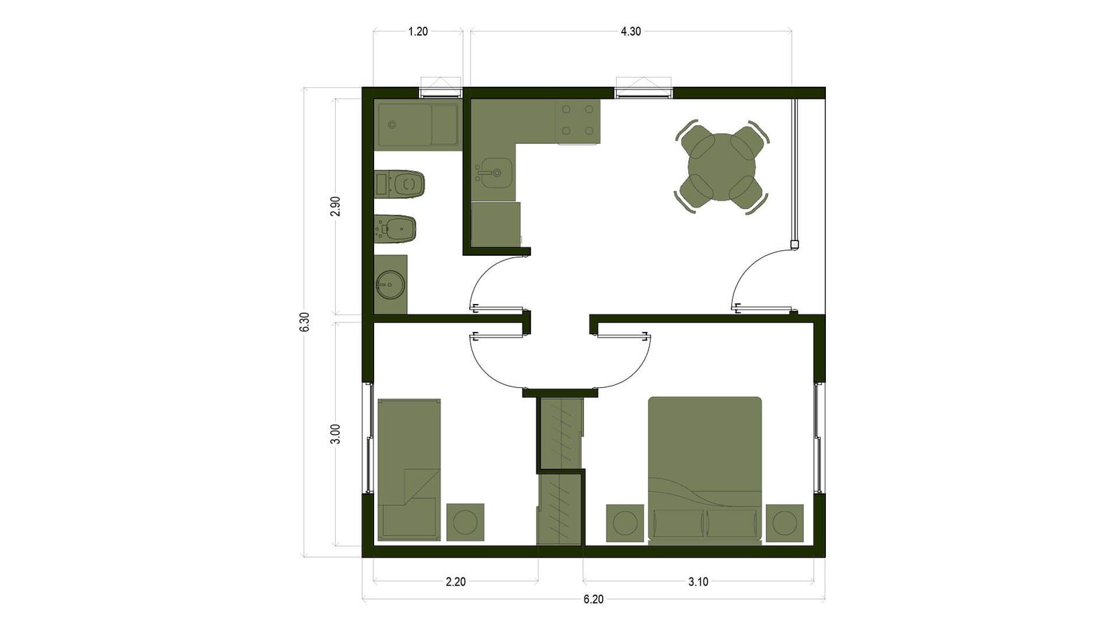
STEEL HOUSE
- Superficie total: 40 m²
- 2 Ambientes: cocina-comedor/habitación
- Baños: 1
- Precio: Consultar
STEEL ALPINE
- Superficie total: 28.8 m²
- 2 Ambientes: cocina-comedor/habitacion
- Baños: 1
- Precio: Consultar
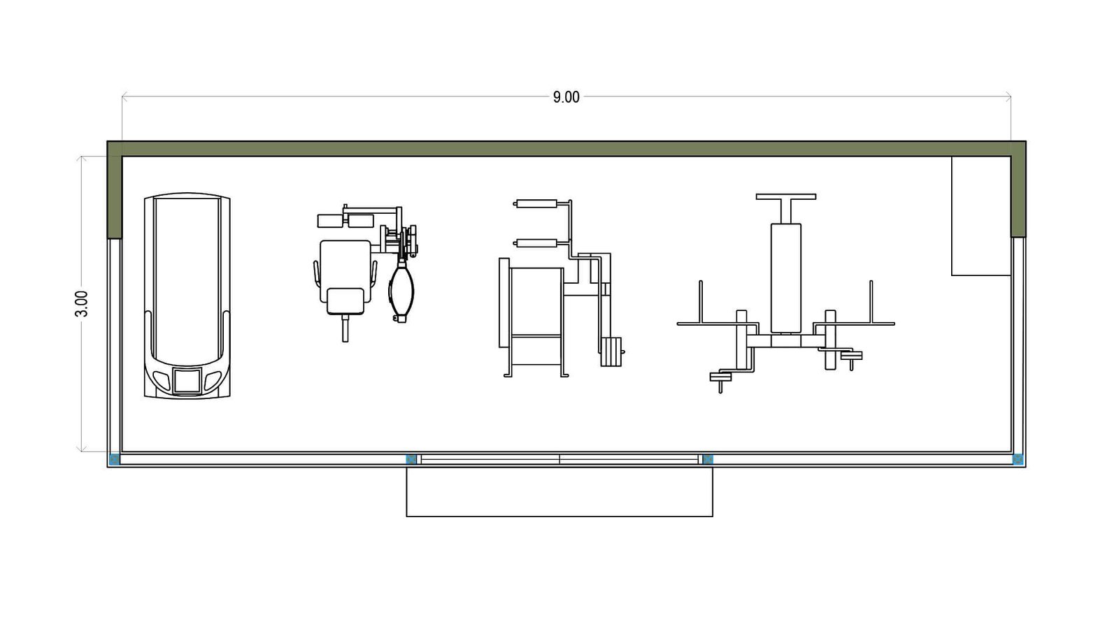
STEEL GYM
- Superficie total: 27 m²
- Espacio de uso Multiple
- Baños: 1
- Precio: Consultar
×
❮
❯